
。●閑静な住宅街の角地に建つ二世帯住宅!部屋数豊富でのびのび暮らせるお家です―長岡京市滝ノ町二丁目 中古二世帯―●゜

今回ご紹介するのは、とっても環境の良い長岡京市の閑静な住宅街の角地に建つ二世帯住宅!
阪急京都本線「西向日」駅から徒歩10分と駅が近いのも魅力的。
最寄りのスーパー「業務スーパー西向日店」はなんと徒歩5分圏内!これだけ近ければ、ちょっとした日々のお買い物に車を出さなくても良さそう。

外観もとっても綺麗です。
ミサワホームのセラミック工法で建てられた築約30年の2階建て住戸。
水廻りのリフォーム歴もあり室内とても綺麗にお使いですので、ハウスクリーニングのみでも入居可能です!

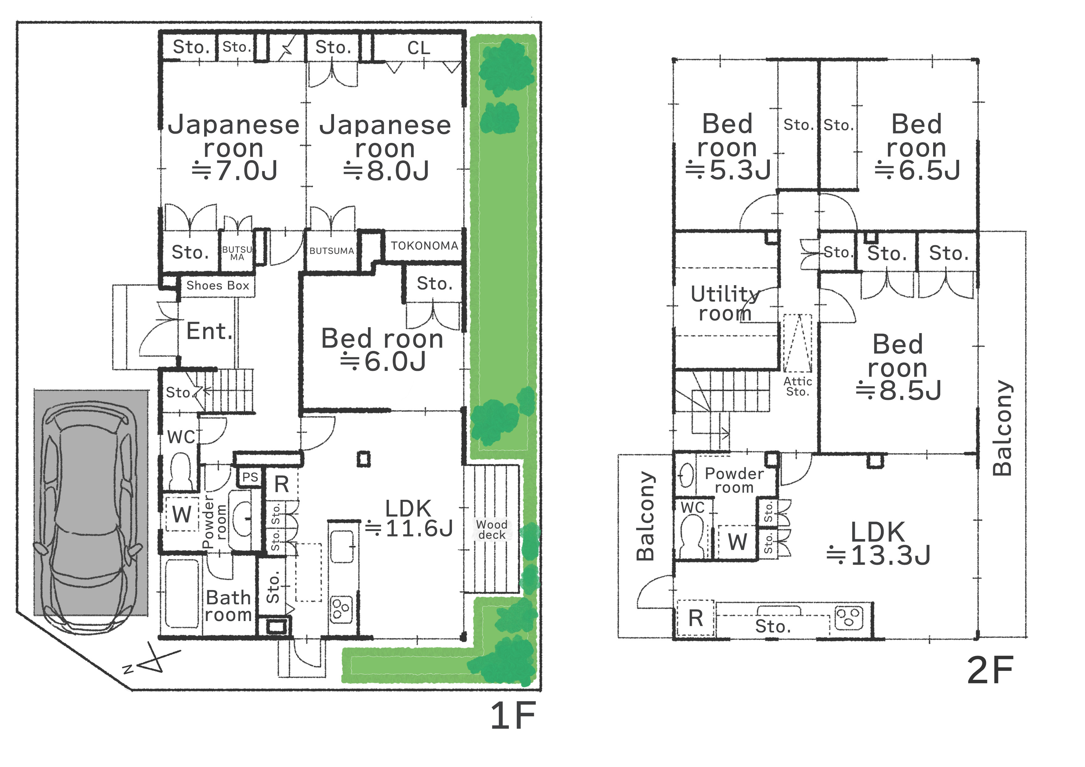
間取りはこんな感じ。
LDKは1階、2階それぞれに御座いますので、それぞれの世帯で分けて生活出来ます◎
トイレ、洗面台も二か所完備!
お部屋数も多く、ご家族の多いご家庭でものびのびと暮らせそうです。
接道は北向きなのですが、お庭や主要採光は南向き!
1階LDKに面したお庭にはウッドデッキもあり、休日はお外でブランチも良いですね♪

窓はハイサッシになっているので、1階でも陽の光をしっかり取り込めます。
キッチンは対面式のため、南側からの日の光が届いて明るい雰囲気です!

※写真は参考のために家具を撤去したイメージを掲載しております。
2階にはバルコニーが南北2面についており、南側のバルコニーはワイドもとっても広くてお洗濯物を沢山干せそう。
LDKの窓の開口も広く、陽光をたっぷりと取り込めるようになっているんです。

※写真は参考のために家具を撤去したイメージを掲載しております。

2階のキッチンはワイドがとっても広いのが魅力的!
ご夫婦で並んでお料理も、お子様と一緒にお菓子作りも出来ちゃいますね。
たまには2世帯一緒にご飯を作っても良いかもしれません♪
カウンターの奥には窓がありますので、こちらも明るい雰囲気。自然光の中でお料理出来るのは嬉しいですよね。


お風呂や洗面台は2022年にリフォームしております。
リフォーム後もとても丁寧にお使いですので、クリーニングのみでそのままご使用頂ける状態です◎
2世帯住宅、駅から10分圏内、スーパーも近く、小学校や中学校も徒歩15分前後と比較的近いところも魅力。
住宅街ですのでお家の周辺は車通りも多くなく、お子様の通学も安心の立地!
是非、お部屋の明るさ、風通しの良さ、周辺環境の良さを体感しにいらして下さい。
ご内覧のご予約お待ちしております♪