
木の温もりを感じるナチュラル素材のリノベーション。余白のある暮らしを楽しむマンション。―プリオーレ京都西院 6階―

こんにちは!リノベマンション大好きスタッフです♪
今回ご紹介する物件は、木の温もりを感じるナチュラルでレトロなテイストが素敵な物件です。
無垢材の温かさは日々の生活まで穏やかで豊かなものにしてくれそう。
―プリオーレ京都西院―

無垢材の柔らかい雰囲気が溢れる内装。
ゆとりのある間取り設計で、家具を配置しても余裕があります。
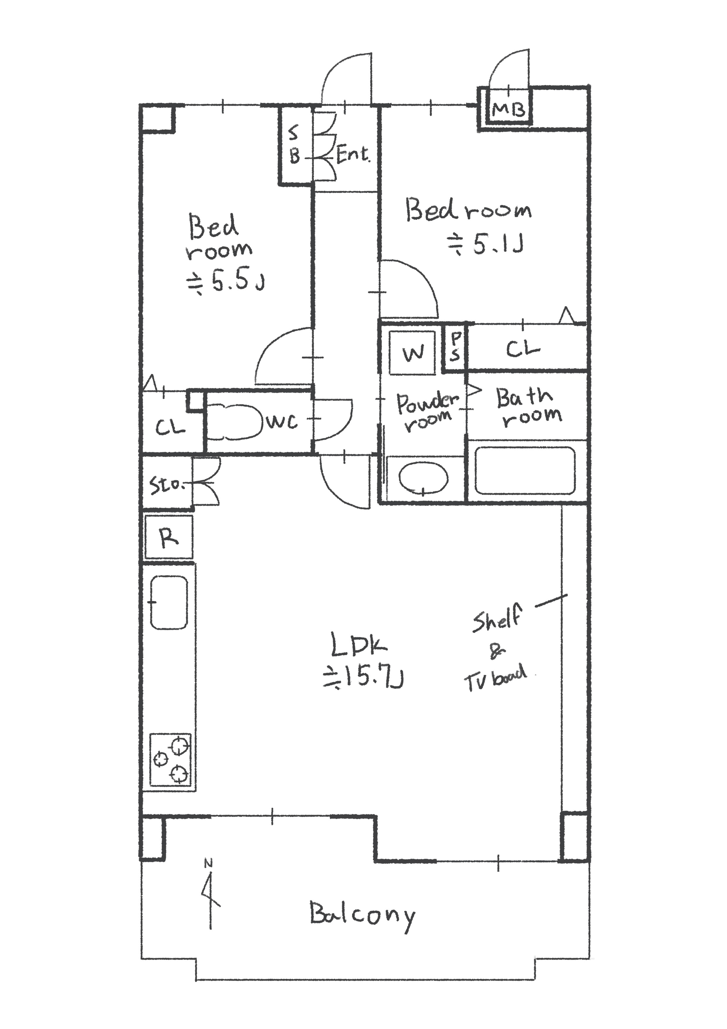
間取り全体はこんな感じです。LDKは広さ充分、15.7帖あり、キッチンも壁付型なのでよりスペースを有効的に活用出来ます。
開放感があり明るい雰囲気が素敵。

東側の稼働棚はテレビボードとして使う事も可能です。
上段には趣味のコレクションを飾ったり、レコードやインテリアを並べるのも素敵ですね。
お気に入りの雑誌や本をディスプレイするのも良いかもしれません!

キッチンは無垢材で構成された造作仕様。
温かみのある木の風合い、毎日の家事時間をゆたかでゆとりのあるものにしてくれそうですね。

天板の美しいステンレスがとグースネックの水栓が、異素材で空間のアクセントになっています。
シンクも広く、家事効率も上がりそう。

各居室に収納もあり、使い勝手の良い間取りも魅力の一つ。
お二人暮らし~三人暮らしにちょうど良い広さと間取り設計です。

洗面台も新調され、造作仕様になっています。ナチュラルでシンプルなデザインが素敵。
Aes●pのハンドソープを置いたらきっと絵になりますね!
こちらの物件はご内覧頂くことが可能です。
是非無垢材の香り、温かみを体感しにいらして下さい!
【こちらの物件は販売中止となりました】