
。●レジャー施設や買い物施設が充実!周辺環境◎のおススメ土地、条件無し!―南区八条源町 売土地―●゜

今回ご紹介するのは京都市南区八条源町にある建築条件なしの土地です。
現在は屋根付き駐車場として利用されている場所で、広さはしっかり125.77㎡、約38.04坪!
しかも東西2方向接道していて、風通しが良いのが魅力♡
建築プランを考えてみましたので、土地を買って新築を建てたいな~とお考えの方は是非ご参考になさって下さい♪

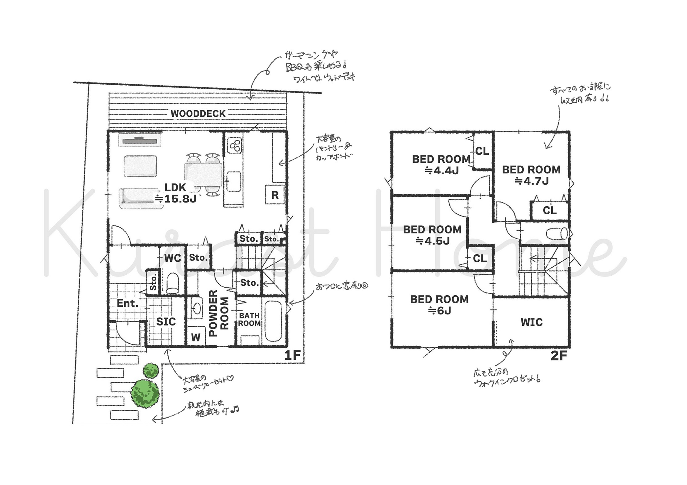
●参考プラン間取り

全体像はこんな感じです!
縦列で駐車2台可能で、ご夫婦でそれぞれお車を持たれていても安心◎

お家の間取りはこんな感じになっています!リビングはややコンパクト?ですが、対面キッチンですので開放感◎
LDKの外に設置されたウッドデッキではガーデニングやBBQも楽しめる!
晴れた日は窓を開け放って、より広々とした空間に。
玄関にはシューズインクローク、2階居室にはそれぞれ収納があり、大容量のウォークインクローゼットも。
これだけ収納が多かったら、お部屋の広さを有効活用出来ますね。
4LDKなのでお子様がお2人~3人いらっしゃるご家庭でも充分のびのび暮らせる広さ。
今はベビーと3人暮らしでも、将来のことを考えて3L~4LDKにしておくのも良いですね。
もちろん、建築条件無しの土地ですので間取りはこの限りではありません!
理想のお家を一緒に考えて行きましょうね。
●参考プランパース

外観イメージはシンプルなモノトーンにしてみました。お車の色や植栽が良く映える!
もちろん、もっと明るい色や 個性的なお色味の外壁をチョイス頂くことも可能です◎

リビングはナチュラルなスカンジナビアテイストで描いてみました!
玄関からの入り口はシックなブラックの扉にしたら明るい空間をきゅっと引き締めてくれます。
小物使いでぐっと深みが出ますので、オプションで壁の一部にエコカラットなどのタイルを張るのも良いですね♪
ワンちゃんのいるご家庭では、ワンちゃんの足腰に負担をかけにくくするフローリングのコーティング施工も可能です。

ワイドなウッドデッキはガーデニングはもちろん、休日はガーデンチェアを出してブランチも良いですね♪
東西接道しているので風通しも良く、明るい雰囲気の空間です。
車の音とか気にならないかな?と思った方は、是非現地でご確認を!
●立地が魅力的すぎる
そして…
この土地の魅力は広さや建築の自由度の高さだけではないんです。
立地がなんとも魅力的!
周辺環境に注目です!是非現地を見てスタッフと一緒に歩いて確認しましょう!
最寄りのJR西大路駅周辺は、有名チェーン店や魅力的な個人店なども揃っています。
西大路の大通りの交通量は多いですがこちらの物件の回りは比較的交通量少な目。
徒歩すぐのところには東寺も御座います。
東寺の門は朝5時から空いていて、朝のお散歩に来る地元の方も沢山!だんだんと朝日に浮かび上がる五重塔は圧巻ですよ。
住んだら是非、早朝のお散歩も楽しんで下さい♪
また、徒歩圏内には梅小路鉄道博物館や京都市水族館も!
ファミリー層にはとっても嬉しい施設がお家の近くに揃っています。
梅小路公園は、AM~昼間はファミリーやわんちゃんのお散歩の方で明るく和やかな雰囲気です。
マルシェ等のイベントも頻繁に開催されていますので、土日はマルシェに参加しても良いですね!
等など・・・ここに住んだらお家の魅力だけじゃない!毎日の暮らしが充実しそうな要素が沢山詰まっているんです。
是非一度現地をご確認下さい♪
内覧は朝・昼・夜など時間帯を分けて何度か行くのがおススメ!それぞれの時間帯の雰囲気もしっかり見ておきましょう。
スタッフが丁寧にご案内致しますので、是非クラストホームまでご連絡下さいね!