
。●ペットと暮らせるメゾネット!リノベプラン付き♪―ヴィーヴル向日―●゜

クラストホームのとっておき物件をご紹介♪
今回ご紹介する物件は、珍しいメゾネット物件!しかも、大切なペットと一緒に暮らせる好条件◎
お部屋数が多い&キッチン、お風呂も二つずつついているので二世帯住宅にもおススメ!
内装リフォームのみでもご入居頂けますが、今回はリノベーションプランも一緒にご紹介いたします♪
※ペットの飼育には規約があります。ご契約前に必ずご確認下さい。
―ヴィーヴル向日―

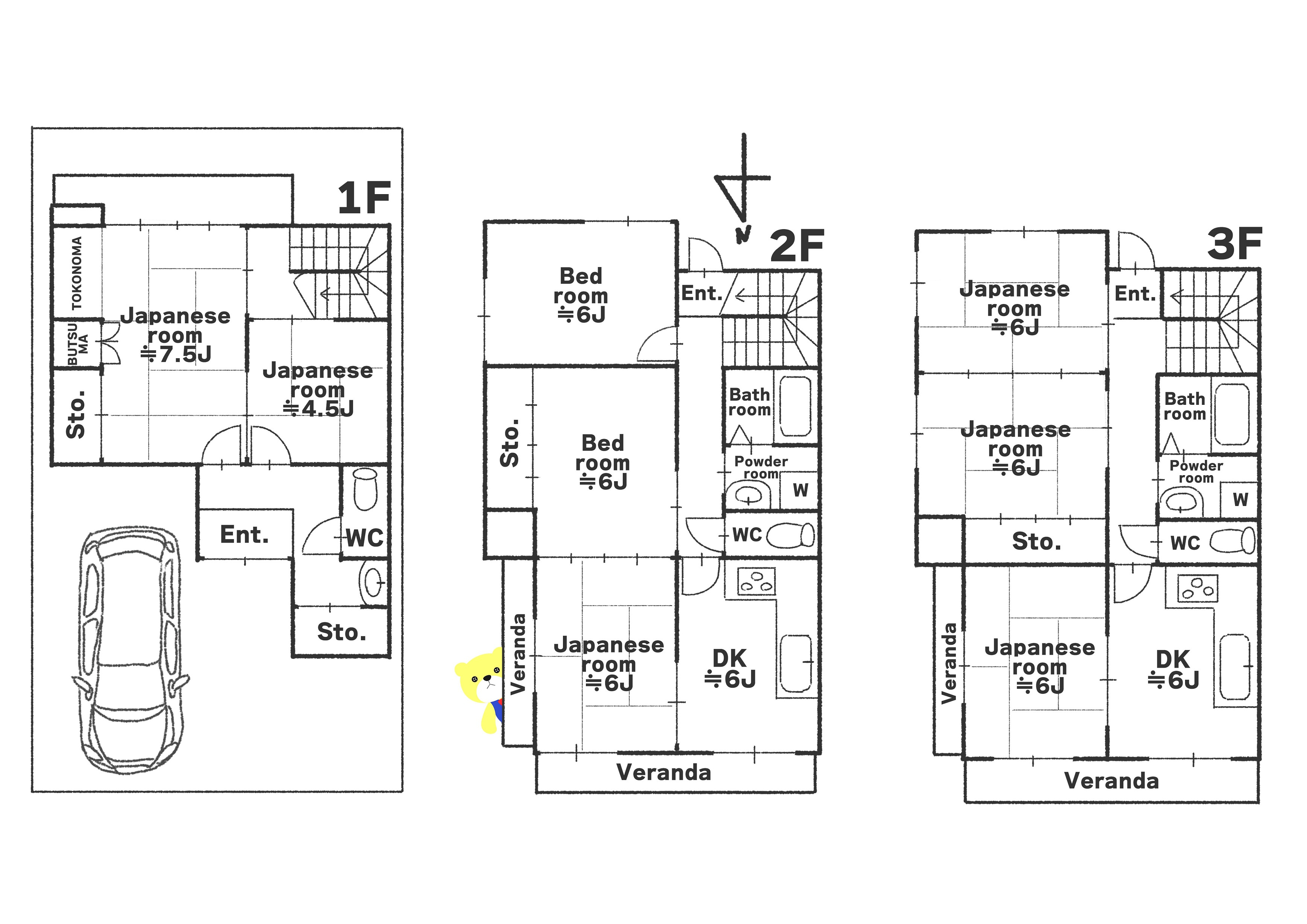
現況の間取りはこんな感じです。
7.5帖の和室1室、4.5帖の和室1室に加え、6帖のお部屋が6部屋も!
ご家族が多いご家庭や、二世帯での暮らしにぴったりな間取りです。
それぞれの階に玄関があるので、2世帯で分けて使うことも可能です!
ベランダも4面付いていて、風通しも◎敷地内に1台駐車可能なのも嬉しい!



現況はこんな感じになっています。ご覧の通り、内装は古くなっていますのでリペアが必要な状態です!
このままの間取りで内装リフォームだけしてお住まいになるのももちろん◎ですが、今回はリノベーションのご提案もご用意しております。
●アウトドア派の一家におススメ!土間のある収納充実の4LDKにリノベーション♪

リノベーションは、メゾネットならでは!1階部分を大胆に改装してアウトドア派のファミリーにおススメしたい
クリエイティブでかっこいい空間をイメージして作成してみました◎
1F
1階の居室は全面的に改装し、玄関から繋がる土間を打ちます。
入って左手には大容量のシューズインクローゼットを設置!スニーカーコレクションや、トレッキングシューズ、ウォーターシューズ等
しっかりと収納しておけます。
ポイントは窓がついていること!換気が出来るので臭いが籠りづらくなっています。
南側には、ゲストルームとしても使えるお部屋を設置。外の縁側はウッドデッキに改修。
ワンちゃんを飼っている方は、一緒にお外で遊べますね♪
玄関を入って右側の収納は、大容量のクローゼットになっています。
例えばテントやBBQ用品、ストック品等たっぷりしまって置くことが可能です!
お庭に置いたアウトドア用の倉庫のように使って頂けるように計画しました◎
2F
2階には広々約20帖のLDKと、居室を1つ設けています。
LDKと居室の間の壁を作らずに、全て一体の空間にもして頂けます♪
キッチンは対面式に変更し、カウンターを設置。休日のブランチはカウンターで食べても良いですね!
廊下との間仕切りは採光の取れるタイプのものを採用することで、フロア全体が明るく開放感のある空間に。
3F
3階はメインの居住空間にしています。お部屋が2つと、大容量のウォークインクローゼットを設置しました!
ウォークインクローゼットは約3帖の広さがありますので、衣装持ちさんも安心◎
ご家族が多くても、みんなのお洋服をしっかりしまって置ける広さです!
浴室には室内窓を設置して、外にはベンチを設置。
ベンチの横の洗面台はワイドカウンターの造作洗面台にしてみました!
フランクだけどちょっと特別なホテルのようなイメージです♪
3階のキッチンも残しています。こちらはサブキッチンとして使っても、2世帯暮らしであればどちらかのご家族の
専用のキッチンとしても◎
DKの真ん中には造作のワークスペースを設置する計画ですので、お料理教室を開くアイデアはいかがでしょうか?
近くにスーパーもありますので、お教室の生徒さんと一緒に食材のお買い物も楽しいかも!
―――リノベーション内容―――
キッチン交換2台/浴室改装×2/トイレ改装×3/洗面台造作×1/洗面台交換×1
間取り変更/全室クロス張替え/全室建具交換/ウッドデッキ新設/土間新設
産廃撤去/ハウスクリーニング
予算:1200万円(税込み)
※水廻りのグレードや、仕様する建材により金額は変動します。
1・2階と3階を分けて2世帯住宅として使用するパターンも◎

―――リノベーション内容―――
キッチン交換2台/浴室改装×2/トイレ改装×3/洗面台造作×1/洗面台交換×1
間取り変更/全室クロス張替え/全室建具交換
産廃撤去/ハウスクリーニング
予算:1500万円(税込み)
※水廻りのグレードや、仕様する建材により金額は変動します。
***
いかがでしょうか?珍しいメゾネット物件で、しかもペット相談可能なこちらのお家。
毎週末オープンハウス開催しておりますので、是非ご予約下さい♪