NEW

京都市中京区壬生高樋町 中古戸建

9,800万円

京都府京都市中京区壬生高樋町

阪急京都本線「大宮」駅徒歩9分

山陰本線「丹波口」駅徒歩10分

京福電気鉄道嵐山本線「四条大宮」駅徒歩11分

価格
9,800万円
間取り
4DK
土地面積
77.37㎡
所在地
京都府京都市中京区壬生高樋町
交通

阪急京都本線大宮」駅 徒歩9分

山陰本線丹波口」駅 徒歩10分

京福電気鉄道嵐山本線四条大宮」駅 徒歩11分

建物面積
120.16㎡
築年月
1950年1月(築76年)

物件の特徴

  • バストイレ別

  • 室内洗濯機置場

  • 独立洗面台

セールスポイント

昔ながらの京町屋とモダンな遊び心を融合させた4DKの古民家!
阪急「大宮」駅徒歩9分!JR「丹波口」駅徒歩10分!京福「四条大宮」駅徒歩11分!
駅近の交通便利な立地です!京都の隠れた名所「壬生寺」の向かいに位置し毎日が京散歩♪
1つ1つが趣を感じるつくりで京都の歴史と暮らしを身近に感じられる一邸です!

基本情報

販売戸数
-
総戸数
-
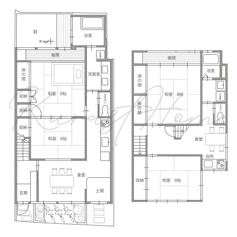
間取り / 詳細
4DK
DK 1室/和室 8.0帖 1室/和室 6.0帖 1室/和室 8.0帖 1室/和室 6.0帖 1室
向き
西
建物面積(坪数)
120.16㎡(36.34坪)
土地面積(坪数)
77.37㎡(23.40坪)
建ぺい率 /
容積率
60%/200%
築年月
1950年1月(築76年)
駐車場 /
月額料金
無 -
土地権利
所有権
土地
(敷金 / 保証金)
- / -
建物構造
木造 / 2階建
傾斜地部分面積
-
路地状敷地
-
私道負担面積
4.50㎡
セットバック
要 記載なし
高圧線下面積
-
施工会社
-
用途地域
準工業
地目 / 地勢
宅地 / -
接道状況
一方(西 2.6m 間口 6.8m)
国土法届出要否
不要
都市計画
市街化区域
総区画数 /
販売区画数
-/-
現況
空家
その他
法令上の制限
準防火地域
取引態様
仲介
引渡し
相談
取引条件の
有効期限
2026年02月22日

設備条件

設備条件
  • 陽当り良好 / 閑静な住宅地 / 二世帯住宅 / 室内洗濯機置場 / フローリング / 都市ガス / 公営水道 / 公共下水 / 電気有 / 照明器具付き / IHクッキングヒーター / バス・トイレ別 / 洗面台 / トイレ2ヶ所 / 浴室1坪以上 / 独立洗面台 / 浴槽 / 収納豊富
設備(その他)
    -

その他

物件番号
100014884
管理コード
-
建築確認番号
-
情報更新日
2026年02月09日
次回更新予定日
2026年02月22日
取扱会社
  • 株式会社クラストホーム
  • 京都府京都市南区久世中久世町2丁目60-6 
  • TEL:0120-395-118
  • 国土交通大臣 (1) 第10938号
備考
●築年月:不詳
●現況:簡易宿所営業中(株式会社Shiki Groupで管理運営中)
・2024年 実質利回り8.4%
●接道状況:2項道路

周辺施設

  • 京都壬生松原郵便局の画像

    郵便局

    京都壬生松原郵便局

    100m(2分)

  • 壬生寺保育園の画像

    保育園

    壬生寺保育園

    237m(3分)

  • ローソン 四条千本店の画像

    コンビニエンスストア

    ローソン 四条千本店

    308m(4分)

  • ライフ 四条大宮店の画像

    スーパー

    ライフ 四条大宮店

    534m(7分)

  • 京都市立朱雀第三小学校の画像

    小学校

    京都市立朱雀第三小学校

    600m(8分)

  • スギ薬局 四条大宮店の画像

    ドラッグストア

    スギ薬局 四条大宮店

    636m(8分)

  • 京都市立松原中学校の画像

    中学校

    京都市立松原中学校

    651m(9分)

  • 京都中央信用金庫 壬生支店の画像

    銀行

    京都中央信用金庫 壬生支店

    686m(9分)

  • 京都市立病院の画像

    総合病院

    京都市立病院

    953m(12分)

  • 六満こども園の画像

    幼稚園

    六満こども園

    1055m(14分)

支払いシミュレーション

月々の支払額
9.6
購入希望物件価格
万円
頭金
万円
金利
%
返済額(ボーナス1回分)
万円
返済期間

※ボーナスは自動で年2回分で計算されます。

近隣の物件

  1. 京都市中京区壬生辻町 中古戸建

    京都市中京区壬生辻町

    3LDK (106.92㎡)

    3,380万円

京都市中京区壬生高樋町 中古戸建

京都市中京区壬生高樋町 中古戸建

9,800万円

-

4DK(120.16㎡)

お気軽にお問い合わせください

無料お問い合わせ

株式会社クラストホーム

0120-395-118

9:00~18:00

(休:不定休)