NEW

ネオコーポラス島ノ内B棟 3階

2,690万円

京都府京都市中京区西ノ京島ノ内町

京福電気鉄道嵐山本線「山ノ内」駅徒歩3分

京都地下鉄東西線「西大路御池」駅徒歩11分

京福電気鉄道嵐山本線「西大路三条」駅徒歩10分

価格
2,690万円
間取り
3LDK
向き
所在地
京都府京都市中京区西ノ京島ノ内町
交通

京福電気鉄道嵐山本線山ノ内」駅 徒歩3分

京都地下鉄東西線西大路御池」駅 徒歩11分

京福電気鉄道嵐山本線西大路三条」駅 徒歩10分

専有面積
67.79㎡
築年月
1975年2月(築50年)

物件の特徴

  • バストイレ別

  • 室内洗濯機置場

  • カウンターキッチン

  • 独立洗面台

  • エレベーター

セールスポイント

2025年12月下旬リノベーション完了予定!!ペット飼育可マンション!
京福「山ノ内」駅徒歩3分&地下鉄「西大路御池」駅徒歩11分の2WAYアクセス♪
嬉しい収納がたくさんで玄関には便利なカウンター付き◎
徒歩圏内に買い物施設等が充実した子育て世代に嬉しい住環境♪

基本情報

管理費
7,200円
修繕積立金
6,500円
修繕積立基金
-
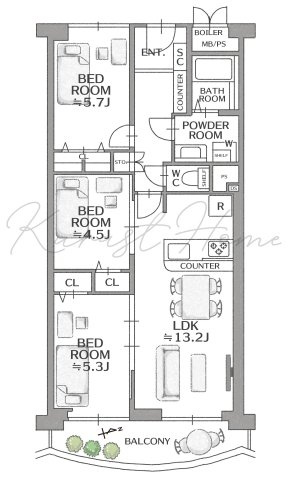
間取り / 詳細
3LDK
LDK 13.2帖 1室/洋室 5.7帖 1室/洋室 5.3帖 1室/洋室 4.5帖 1室
向き
専有面積
67.79㎡
バルコニー面積
7.33㎡
その他面積
-
-
-
所在階 / 階建て
3階 / 11階建
建物構造
鉄骨鉄筋コンクリート
築年月
1975年2月(築50年)
種別
中古マンション
土地権利
所有権
土地
(敷金 / 保証金)
- / -
国土法届出要否
不要
接道状況
-
用途地域
工業
地勢
-
都市計画
-
現況
空家
引渡し
相談
取引態様
仲介
棟総戸数
200戸
管理形態
管理会社に全部委託
管理会社 /
管理組合有無
(株)浪速管理 / -
リノベーション
    2025年12月下旬完了予定
    ●新規交換/システムキッチン・ユニットバス・洗面化粧台・トイレ・建具・配管更新 ●クロス全室貼替 ●床材張替 ●ハウスクリーニング
その他条件
自治会費月:300円 ●ペット飼育可/犬・猫2匹まで飼育可
取引条件の
有効期限
2025年12月22日

設備条件

設備条件
  • ペット相談 / ペット飼育可 / 陽当り良好 / リノベーション済 / 新婚さん向け / ファミリー向け / 室内洗濯機置場 / フローリング / バルコニー / エレベーター / 駐輪場 / バイク置場あり / システムキッチン / カウンターキッチン / バス・トイレ別 / 洗面台 / 独立洗面台 / ユニットバス / トランクルーム / 収納豊富
設備(その他)
    -

その他

物件番号
98425461
管理コード
-
建築確認番号
-
情報更新日
2025年12月09日
次回更新予定日
2025年12月22日
取扱会社
  • 株式会社クラストホーム
  • 京都府京都市南区久世中久世町2丁目60-6 
  • TEL:0120-395-118
  • 国土交通大臣 (1) 第10938号
備考
●トランクルームあり(NO.315/無償)
●アフターサービス保証付
●24時間365日緊急対応サービス

※図面と現況が相違する場合は現況を優先致します。
※設置されているインテリア家具はディスプレイ用になります。

周辺施設

  • 京都山ノ内郵便局の画像

    郵便局

    京都山ノ内郵便局

    113m(2分)

  • あいりす 山ノ内保育園の画像

    保育園

    あいりす 山ノ内保育園

    169m(3分)

  • スーパーマツモト 西小路御池店の画像

    スーパー

    スーパーマツモト 西小路御池店

    356m(5分)

  • ファミリーマート 御池山ノ内店の画像

    コンビニエンスストア

    ファミリーマート 御池山ノ内店

    384m(5分)

  • ディスカウントドラッグコスモス 西大路三条店の画像

    ドラッグストア

    ディスカウントドラッグコスモス 西大路三条店

    425m(6分)

  • 京都ファミリーの画像

    ショッピングセンター

    京都ファミリー

    676m(9分)

  • 京都銀行 西四条支店の画像

    銀行

    京都銀行 西四条支店

    741m(10分)

  • ホームセンターコーナン かどの四条外大前店の画像

    ホームセンター

    ホームセンターコーナン かどの四条外大前店

    809m(11分)

  • 春日幼稚園の画像

    幼稚園

    春日幼稚園

    935m(12分)

  • 京都市立朱雀第八小学校の画像

    小学校

    京都市立朱雀第八小学校

    1240m(16分)

  • 京都市立西ノ京中学校の画像

    中学校

    京都市立西ノ京中学校

    1730m(22分)

支払いシミュレーション

月々の支払額
9.6
購入希望物件価格
万円
頭金
万円
金利
%
返済額(ボーナス1回分)
万円
返済期間

※ボーナスは自動で年2回分で計算されます。

近隣の物件

  1. シンフォニー太子道 3階

    京都市中京区西ノ京南上合町

    3DK (53.46㎡)

    3,100万円

ネオコーポラス島ノ内B棟 3階

ネオコーポラス島ノ内B棟 3階

2,690万円

7,200円

3LDK(67.79㎡)

お気軽にお問い合わせください

無料お問い合わせ

株式会社クラストホーム

0120-395-118

9:00~18:00

(休:不定休)